Skip to main content

Thorpe Park Submit Project Exodus Plans

Thorpe Park
Monday 14th March 2022

Thorpe Park submitted plans today for their newest coaster, currently, code-named Project Exodus.  No name for the attraction has been announced and probably won't be for a while! 


The new rollercoaster, rumoured to be built by Mack rides, will be located in Old Town and will see the removal of Loggers Leap station and track around the area. Although we've seen early and brief plans for this coaster before, this is the first time we've had official plans submitted by the park to the local council.


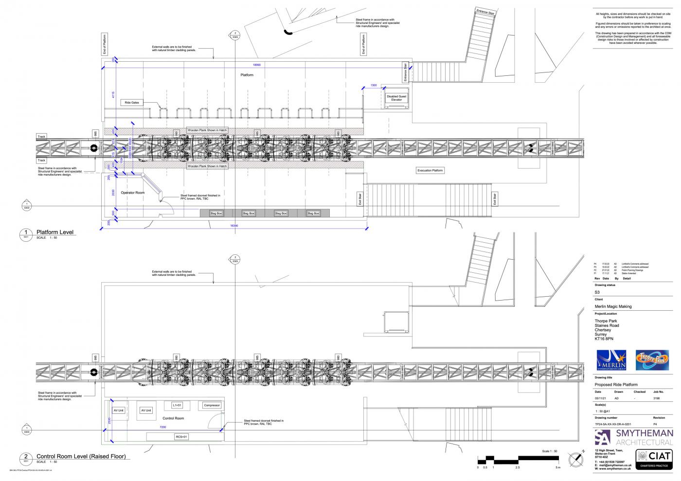
After taking some time to analyse these new plans, we can confirm that the new rollercoaster looks to have 10 rows with 2 seats per row. Plans of the station from head-on and a bird's eye view also seem to confirm our thoughts that the ride could be built by Mack Rides! Featuring lap bars, a shield in front of each 4 seat car-like Icon and Blue Fire and a very similar track design to Blue Fire and Icon. If this is a Mack Rides rollercoaster, this means that the park could get the iconic bag system that comes with the brand's rides. 


Referred to as Project Highrise and Project Exodus throughout plans, it does definitely mean the end of the Loggers Leap station, ride and the old Canada Creek Railway building. When. looking at the plans, the old Mexican cantina building will remain and will be home to a new shop, with a new photo unit being bolted onto the side of the building. If truly being turned into one big building this shop is going to be HUGE! 


Other bits noticed in the plans are: 


The queue lines for the ride are visible such as accessible and standard "queue lines"


A disabled lift can be seen in the back corner of the station.


The maintenance building for the ride will be located almost behind Burger King. For the trains to get on and off of the track the transfer track is at the front of the station. 


The splashdown area and viewing plaza appear to be accessible via the exit of the ride. 


In the photos of the area showing how everything looks before the park begins work on the ride, the steps that guests used to walk over to get over the Loggers Leap trough have been removed.


One nice little extra touch noticed in the plans is that the Loggers Leap memorial has been moved to the Sunken Gardens located next to the entrance of Stealth. 


We cannot wait to watch this project progress over the next few months and years! Thorpe Park has definitely got a new top coaster coming it's way. 


Recently Posted News Articles

Shop In Area Display